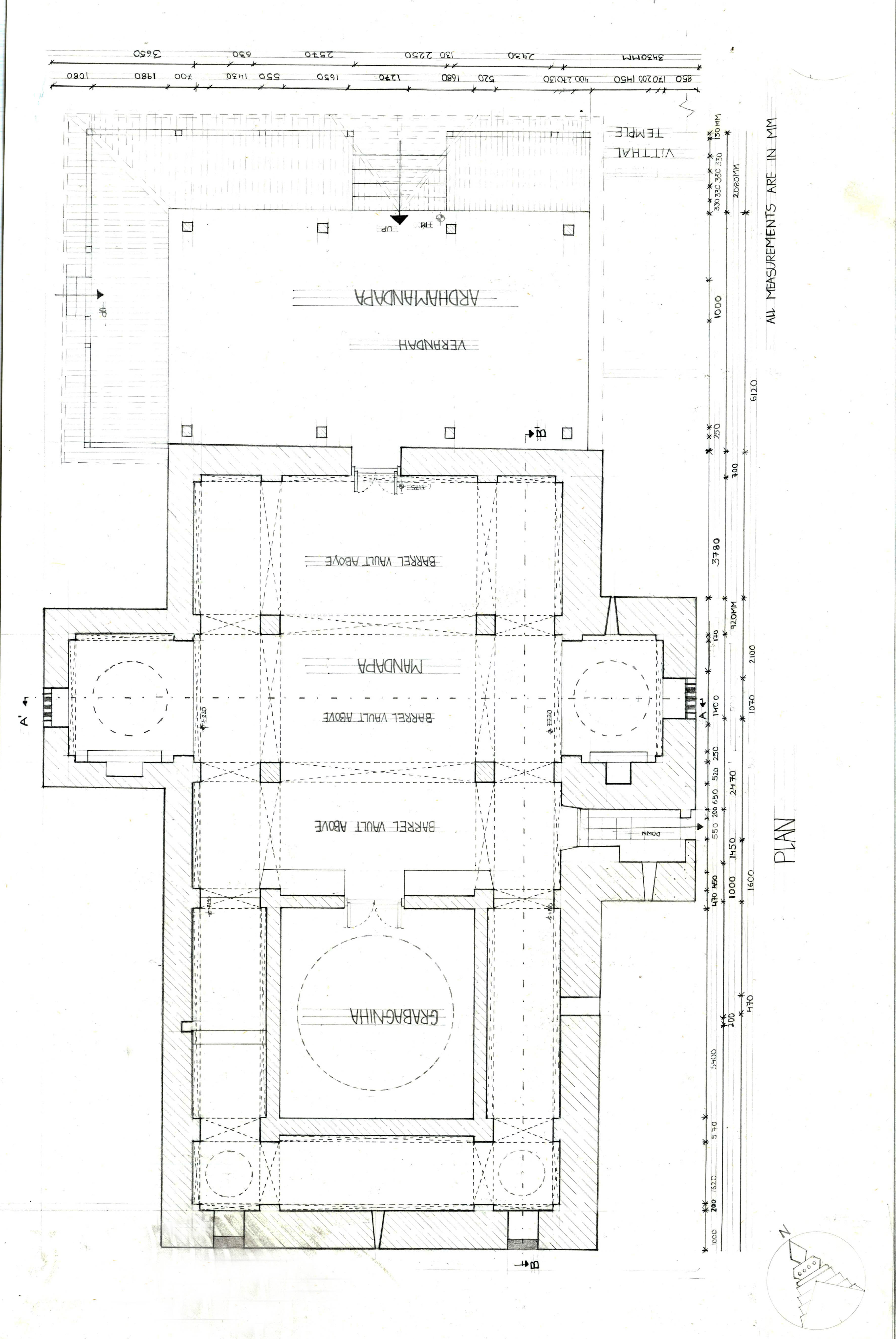
A mapping and documentation exercise of the Rameshwar Temple precinct at Chaul, Alibaug. The exercise was carried out be the students of semester two as a part of their initial studies for the architectural design studio.
Instructors: Chaitra Sharad, Manasi Chokshi, Pranav Naik, Rajan Subhedar and Sanket Mhatre
